富易堂fyt

富易堂fyt整装
引领品牌
  • 环保
    建材
  • 定制
    设计
  • 拎包
    入住
  • 硬装
    软装

24小时装修热线

400-777-2206

首页
目今位置: 首页 家装案例 家装案例 > 丽景名筑

丽景名筑

富易堂fyt·(中国)官方网站点击:704次富易堂fyt·(中国)官方网站时间:2016-08-04
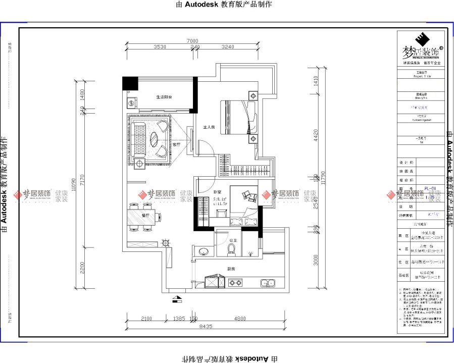
楼盘名称: 丽景名筑 案例户型: 两居室
工程面积: 92㎡ 工程造价:
案例气概: 轻奢气概 设计师: 富易堂fyt装饰
设计说明:

富易堂fyt·(中国)官方网站

富易堂fyt·(中国)官方网站

上一篇: 蓝波湾

上一篇: 利和豪庭

更多>本案例设计
富易堂fyt·(中国)官方网站

设计师:富易堂fyt装饰

从业时间:12年以上

善于气概:

在线预约 审查更多
富易堂fyt·(中国)官方网站
富易堂fyt·(中国)官方网站
以上信息将为您保密,,,请放心填写

为什么选择我们

咨询在线客服

13822725067

服务热线

400-777-2206

富易堂fyt·(中国)官方网站

微信服务号

【网站地图】