咨询在线客服
13822725067
点击:964次
时间:2023-10-07
案例简介 Case sharin
穿越喧嚣的都会之林
当生涯模糊现实与虚幻之间的界线
逐光追影
阅尽富贵处
与心灵对话
静享一室静谧安定
空间结构无邪,,,,,,色彩搭配协调,,,,,,设计元素富厚,,,,,,充分展现了现代简约气概的特点,,,,,,营造出舒相宜人的生涯气氛。。。。。
客厅色彩清静恬静,,,,,,空间优雅自然;;;;;卧室没有过于繁杂的装饰,,,,,,慵懒恬静的气氛徐徐浓重,,,,,,给人带来无限享受;;;;;质感满满的衣帽间带来细腻的高级享受,,,,,,知足女主人的个性化需求。。。。。从居家着手,,,,,,去掉繁琐的装饰,,,,,,简约清新的情形,,,,,,回归本真生涯。。。。。

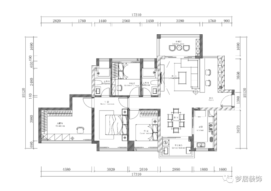
平面安排图
LIVING ROOM / 客 厅

DINING ROOM / 餐 厅

THE BEDROOM / 主 卧

CLOAKROOM / 衣帽间

THE BEDROOM / 次 卧

CHILDREN'S ROOM / 儿童房

BATHROOM / 卫生间


扫描二维码关注富易堂fyt公众号
富易堂fyt?专注环保家装20年
谢谢翻阅|接待分享
更多作品请关注公众号
天下直营门店
自有施工团队
业主碑力推
品质质料展厅
都会服务