富易堂fyt

富易堂fyt整装
引领品牌
  • 环保
    建材
  • 定制
    设计
  • 拎包
    入住
  • 硬装
    软装

24小时装修热线

400-777-2206

首页
目今位置: 首页 装修资讯 装修资讯 > 【富易堂fyt】109㎡现代风两居室,,,享受自然优雅的细腻生涯。。。。。

【富易堂fyt】109㎡现代风两居室,,,享受自然优雅的细腻生涯。。。。。

富易堂fyt·(中国)官方网站点击:1324次富易堂fyt·(中国)官方网站时间:2023-11-24

富易堂fyt·(中国)官方网站


 气概:现代风| 空间:两居室| 面积:109平米

案例简介 Case sharin


理想的寓所设计注重的不是奢华享受,,,而是创立一个愉悦和恬静的生涯情形。。。。。本案设计接纳了优雅的浅灰、白色、棕色等中性色,,,为空间注入了自然恬静的气氛,,,简约的造型线条营造出细腻优雅的空间感受,,,让生涯的每一刻都充满了雅致气氛,,,创立出业主最期待的生涯,,,感受岁月静好。。。。。

富易堂fyt·(中国)官方网站

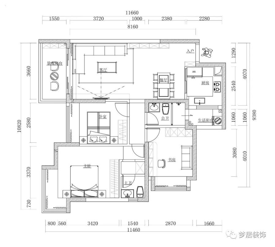
平面安排图




LIVING ROOM / 客餐厅

(请旋转屏幕审查效果图)

富易堂fyt·(中国)官方网站

富易堂fyt·(中国)官方网站



END



STUDY / 书 房


富易堂fyt·(中国)官方网站



THE BEDROOM / 主 卧


富易堂fyt·(中国)官方网站



Design comes from
设 计 师
富易堂fyt·(中国)官方网站


富易堂fyt装饰

富易堂fyt装饰?中山总部

专注环保家装二十年

【为亿万家庭筑造康健、恬静的家居情形。。。。。】

●富易堂fyt建设于2003年5月,,,是一家集家居、酒楼、办公空间、大型修建、园林妄想设计于一体,,,为客户提供专业咨询、设计、施工一条龙服务的实力雄厚、人才荟萃、康健环保的专业装饰设计工程公司。。。。。拥有100+分支机构,,,营业遍布天下八省百余都会。。。。。我们一直在为客户追求一个更好的生涯体现形式,,,一直在寻找一种更恬静的家居感受。。。。。

●企业声誉:"广东省消耗者知足单位",,,"广东省著名品牌",,,"广东省守条约、重信用企业",,,"天下优异装饰企业",,,"天下十佳诚信单位",,,"质量、服务、信誉AAA级金牌单位",,," ICDA中国家庭装饰服务中心",,,"天下住宅装饰装修行业百强企业"


地点:中山市东区泛爱六路博鳌广场3座首层

装修热线:400-777-2206




扫描二维码关注富易堂fyt公众号


富易堂fyt?专注环保家20

谢谢翻阅|接待分享

更多作品请关注公众号




富易堂fyt·(中国)官方网站

富易堂fyt?专注环保家20

谢谢翻阅|接待分享

更多作品请关注公众号

上一篇: 【富易堂fyt】冬日气氛感家居营造,,,与温暖不期而遇!

上一篇: 【富易堂fyt】装修这几处小刷新,,,新家住起来更舒心

富易堂fyt·(中国)官方网站
富易堂fyt·(中国)官方网站
以上信息将为您保密,,,请放心填写

为什么选择我们

咨询在线客服

13822725067

服务热线

400-777-2206

富易堂fyt·(中国)官方网站

微信服务号

【网站地图】