咨询在线客服
13822725067
点击:843次
时间:2024-02-26专注环保家装21年
装修/设计/室内设计/富易堂fyt装饰

About room/案例简介
设计气概/ 现代轻奢
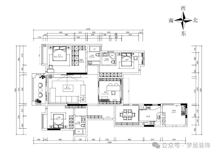
设计面积/ 192㎡
设计空间/ 三 居
项目简介:
《了不起的麦瑟尔夫人》曾著:“没有真正的完善,,,只有忠于自己的细腻。。。。。。”在装修塑造中,,,我们聚焦‘人、空间、艺术’,,,探索业主栖身与艺术诉求,,,以现代轻奢作为创作的焦点理念,,,借由无邪的结构与动线,,,促成整个空间简约中极具优雅质感的视觉印象,,,让对神往高品质生涯的业主满载而归。。。。。。木作、石材、布艺、皮革,,,经由种种巧妙的排列组合,,,富厚空间条理,,,营造触手可及的恬静。。。。。。
|平面安排| THE FLATLAYOUT|

|入户| HALLWAY|


仪式感是平庸日常中的“领衔主演”,,,家除了认真将所有喧嚣与浮躁阻遏在外,,,也肩负着让生涯更具仪式的使命。。。。。。步入室内,,,现代简约与优雅共生的质感扑面而来,,,设计师摒弃高饱和的色彩,,,大面积保存材质的原生态质感,,,同时嵌入金属、玻璃等细节,,,正式为家开启一场惬意的现代轻奢美学。。。。。。
|会客厅| THE LIVINGROOM|

客厅是与家人休闲的场域,,,也是会见亲密挚友的场合。。。。。。设计师聚力优化客厅标准、家具设置,,,沙发选用细腻柔软的饰面材质,,,坐感恬静,,,让人尽享放松;;;;;搭配长方形茶几,,,令作为社交属性的客厅更显秩序与格调,,,圆弧形边角为客厅带来更舒缓的感受。。。。。。

圆弧形天花吊顶潜在灯带更显优雅恬静,,,时尚现代的细腻元素有致地落置于空间的各个角落,,,在整体优雅调性中多出几分张力,,,让沉稳的空间更显活力,,,似两个时空的对话,,,从细节中提炼生涯的热情。。。。。。配景墙用石膏线勾勒简朴的造型,,,空间颜色温柔优雅,,,元素设计搭配恬静大方。。。。。。
|餐 厅| THE DININGROOM|


餐厅安排以浅色为主,,,优雅中流淌出对生涯品质的细腻追求,,,流通自然。。。。。。品牌餐桌椅的选用,,,兼具复古与现代的优雅感,,,摆设着的细腻餐具,,,让四序三餐、一蔬一饭在家的温暖中获得超乎果腹的意义。。。。。。水晶吊灯的呼应让艺术的细腻在空间中流动,,,转达着属于家的慢节奏生涯。。。。。。
|厨 房| THE KITCHEN|


厨房推演出最优的生涯标准,,,简约细腻的设计给足生涯仪式感。。。。。。木色与白色厨柜即便在烹饪中也不失迷人的雅致气息。。。。。。简约的石英石操作台面轻松简雅,,,兼具性能和艺术的精髓,,,于此间畅享味蕾与视觉的双重感受。。。。。。
|主 卧| THE BEDROOM|

主卧作为私密的个人空间,,,彰显居者的品味喜欢。。。。。。设计师以奶白色为肌底,,,金属材质装点其上,,,予人静谧的视觉享受以及复古漂亮气韵的伸张,,,将日常生涯情境与审美精神在统一领域融会,,,融合纺织品轻奢的纤维质感,,,进一步增进空间的松懈感,,,墙面金属装饰线条及壁灯彰显着轻奢奢华质感。。。。。。
|儿童房|THE CHILDREN'SROOM|

儿童房以简约利落的铺叙完成空间的设计,,,艺术与质感兼具的色彩搭配将房间的品质调性充分地施展出来。。。。。。色彩轻快又彰显着低调奢雅,,,创意的花型吊灯作为点睛之笔,,,将复古又浪漫的美学气息融入空间之中,,,配合空间的金属装饰线条,,,感受生涯细腻温馨的优美。。。。。。
|儿童房|THE CHILDREN'SROOM|

转用更为年轻化的设计来创立儿童房,,,浅绿色为主的设计语言律动着空间,,,充满着活力与壮丽。。。。。。古板书桌改为壁桌,,,增添空间的适用性。。。。。???砂淖笆伟诩尤为醒目,,,既匹配孩子的无邪童心,,,也使视觉条理更为富厚,,,让空间洋溢着更为生动的气氛。。。。。。
|书 房|THE STUDY|

关于现代都会事情者而言,,,生涯与事情之间的界线渐越模糊,,,办公场景最先融入生涯理念,,,生涯场景自然也多了办公诉求,,,书房功效必不可少。。。。。。从办公桌椅到书柜,,,筒灯搭配线形灯以及台灯实现多场景休闲办公灯光需求,,,设计师将空间举行多条理、多维度的美学场域构建,,,无论是阅读照旧办公,,,皆能唤起精神天下的闲适与自若。。。。。。
|卫生间|BATHROOM|

设计师接纳拉丝金属与清玻连系,,,空间增添隐藏灯光设置,,,所有设置一应俱全,,,用摆设的方式修建恬静奢雅的卫浴空间。。。。。。线条则引入一种有序的理性之感,,,进而吐露泛起代轻奢主义中的恬静美学。。。。。。

扫描二维码关注富易堂fyt公众号
富易堂fyt?专注环保家装21年
谢谢翻阅|接待分享
更多作品请关注公众号
天下直营门店
自有施工团队
业主碑力推
品质质料展厅
都会服务