咨询在线客服
13822725067
点击:995次
时间:2024-10-10
- 为亿万家庭筑造康健、恬静的家居情形 -
项目信息
ABOUT THE PROJEC
设计气概/ 现 代
设计面积/ 405㎡
设计空间/ 别 墅
项目简介:
本案是一套别墅栖身空间,,,,现代的设计气氛将恬静时尚的气息融入家中。。。。。玻璃、木料、石材、智能家居、软装设计等现代空间时尚元素的应用打造出集鉴赏和恬静适用为一体的现代美学墅居空间。。。。。同时设计师将个性化与美学的连系,,,,为栖身者打造出一个既切合现代审美又知足生涯需求的理想寓所,,,,为业主的未来墅居生涯带来更多的恬静与惊喜。。。。。

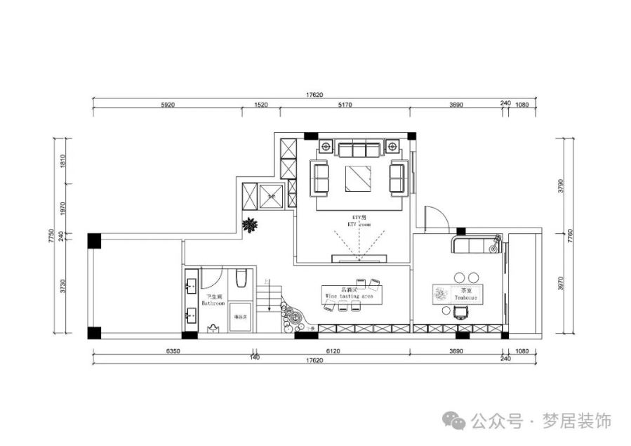
富一楼平面安排方案

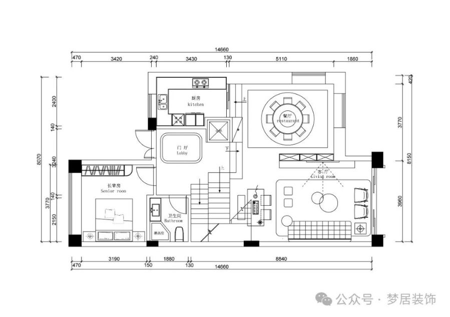
一楼平面安排方案

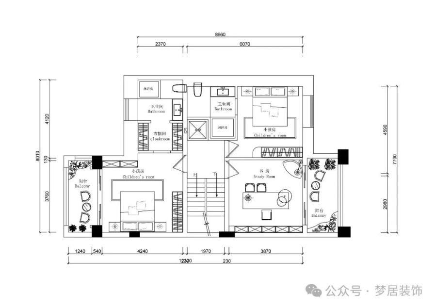
二楼平面安排方案

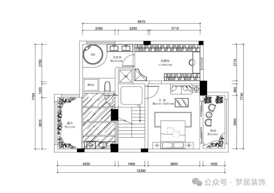
三楼平面安排方案
01 入户 | Decoration
————————————————————

抛却了繁杂与花哨,,,,精简统一的色彩给予空间足够的自由标准。。。。。高清灰色玻璃的运用巧妙支解空间,,,,隔而一直,,,,赋予空间似有若无的通透美感。。。。。
02 客厅 | Decoration
————————————————————

现代别墅客厅空间视觉连贯,,,,互动性强。。。。。
客厅大面积推拉门不但能让室内采光富足,,,,增添空间的坦荡感,,,,还能将室外的景致引入室内,,,,使客厅空间在视觉上获得延伸。。。。。
恬静的布艺沙发组合悄悄诉说着时光的温柔,,,,为现代气概增添了一抹清静的气息,,,,在这里,,,,每一个午后都变得悠长而优美。。。。。

现代设计空间注重简约的造型设计。。。。。
精练的直线造型,,,,没有过多的装饰,,,,材质上则更为考究。。。。。
精练、低调的色彩为主色调,,,,为现代气概别墅客厅营造出高级、沉稳、清洁明亮的气氛。。。。。
墙面和天花板接纳白色,,,,地面铺设灰色的大理石瓷砖,,,,木色增添温馨感,,,,整体色协调谐统一。。。。。
03 餐厅 | Decoration
————————————————————

04 厨房 | Decoration
————————————————————

厨房空间为U型结构设计,,,,冰箱、烤箱做嵌入设计,,,,烹饪时动线流通。。。。。低饱和度的色彩让人放松,,,,大片木色带来自然的呼吸感。。。。。
05 书房 | Decoration
————————————————————

书房在空间使用上接纳开放式和关闭式连系的收纳方式。。。。。既可以展示喜欢的艺术藏品,,,,增添空间的文化气氛和个性化,,,,收纳文件、办公用品也更整齐有序。。。。。

整体空间色彩以中性色为主,,,,暖调的咖色增添空间的稳重感宁悄悄气氛。。。。。安排恬静的沙发椅,,,,利便长时间阅读,,,,成为业主放松身心的角落。。。。。
06 主卧 | Decoration
————————————————————

主卧室墙面硬包+木格栅带来时尚简约又温馨的感受,,,,皮质床头靠背与配景墙的搭配在色彩和质感上更显时尚气氛。。。。?????占精练、明亮,,,,木色元素为空间增添一份自然的温暖,,,,营造出清静的气氛。。。。。

现代设计的极简感受体现在空间的结构上。。。。。床尾的布艺小沙发和简约造型小茶桌,,,,没有多余的装饰和繁杂的安排,,,,一切都是简约而细腻。。。。。
07 尊长房 | Decoration
————————————————————

尊长房的设计以恬静、清静、便捷为主,,,,强调简约与功效。。。。。色彩上选择了柔和、温暖的色调,,,,有助于放松的米色、浅木色等色彩,,,,为尊长营造出恬静温馨的气氛,,,,让尊长感受恬静自在。。。。。无主灯设计灯光柔和温暖,,,,阻止强光刺激眼睛。。。。。
08 小孩房 | Decoration
————————————————————


卧室阳台封窗,,,,打造小休闲区。。。。。高清玻璃推拉门引景入室,,,,加宽的玄色不锈钢垭口搭配极窄玻璃推拉门,,,,泛起的是现代空间设计的细腻气氛。。。。。轻盈的纱帘搭配浅色的木地板,,,,营造出慵懒惬意的气氛。。。。。
09 小孩房 | Decoration
————————————————————

现代气概中性色调所营造出的的卧室宽敞明亮,,,,同时又不会给人过于冷漠的印象。。。。。精练、时尚的设计,,,,简约精巧的软装,,,,柔软恬静的床品,,,,通铺的原木地板,,,,气氛感和恬静度直接拉满。。。。。
10 衣帽间 | Decoration
————————————————————

卧室、衣帽间地面木地板通铺,,,,与原木肌理木门、垭口形成拼接。。。。。从主卧、衣帽间过渡到卫生间,,,,整个空间动线清晰流通,,,,生涯利便快捷。。。。。同时满墙的储物设计将空间的使用抵达最大化,,,,确?????占涞拇⑽锬芰。。。。。

一门到顶的浅灰色衣柜质感满满,,,,搭配茶色玻璃高级又有质感。。。。。同时预留出梳妆台位置利便日常生涯使用,,,,功效性与雅观性十足。。。。。
11 主卫 | Decoration
————————————————————

主卫进门是造型精练的壁挂式浴室柜,,,,洗手台上方装置镜前灯,,,,包管富足的光线;;底部留空利便日常的清洁。。。。。灰色的瓷砖营造出精练、大气、时尚的现代感。。。。。

空间干湿疏散设计。。。。。使用大面积的玻璃阻遏来划分淋浴区与其他空间,,,,增加空间的通透感。。。。。嵌入式浴缸利便清洁,,,,且拥有优异的隔热性能,,,,能更长时间坚持恬静的泡浴状态。。。。。
12 套卫 | Decoration
————————————————————

小孩房套卫色彩搭配上以浅色为主,,,,打造出清新的视觉效果。。。。。玻璃推拉门为阻遏,,,,将空间举行划分,,,,百叶帘作为隐私阻遏通透性也强。。。。。
设计师 Designer

刘子杰
富易堂fyt装饰集团总设计师
【小小空间是个宇宙,,,,“家”不但是用来“住”的。。。。。】
●富易堂fyt建设于2004年10月,,,,是一家集家居、酒楼、办公空间、大型修建、园林妄想设计于一体,,,,为客户提供专业咨询、设计、施工一条龙服务的实力雄厚、人才荟萃、康健环保的专业装饰设计工程公司。。。。。天下拥有100+家分支机构,,,,营业遍布天下九省百余都会。。。。。我们一直在为客户追求一个更好的生涯体现形式,,,,一直在寻找一种更恬静的家居感受。。。。。
●获得企业声誉:"广东省消耗者知足单位",,,,"广东省著名品牌",,,,"广东省守条约、重信用企业",,,,"天下优异装饰企业",,,,"天下十佳诚信单位",,,,"质量、服务、信誉AAA级金牌单位",,,," ICDA中国家庭装饰服务中心",,,,"广东省装饰行业协会理事单位",,,,"天下住宅装饰装修行业百强企业",,,,"设计立异先进单位"
●地点:中山市东区泛爱六路博鳌广场3座首层
●装修热线:400-777-2206




●你可知道,有富易堂fyt的地方,每3位高端装修业主中就有1位,选择富易堂fyt!
●你可知道,最优异的设计师团队, 就在富易堂fyt!
●你可知道,只专注室内设计装修公司,唯有富易堂fyt!
●富易堂fyt装饰向来重视网络客户价值,,,,敢于借助网络平台透明装修,,,,工程一目了然。。。。。富易堂fyt装饰集团,,,,将拥有中国得天独厚的人居情形,,,,以富易堂fyt人的严谨、客观以及提倡客户理性消耗、感性生涯的装修态度,,,,为中国业主提供更环保、更实惠的装修服务。。。。。
富易堂fyt?在中国

中山北区公司 | 中山东区公司 | 中山南区公司 |
中山西区公司 | 中山三乡公司 | 广东清远公司 |
云南文山公司 | 云南保山公司 | 浙江金华公司 |
广东普宁公司 | 佛山三水公司 | 广西贺州公司 |
广西钦州公司 | 珠海斗门公司 | 江西赣州公司 |
江苏宜兴公司 | 湖南怀化公司 | 江西南康公司 |
广东江门公司 | 广东河源公司 | 广东湛江公司 |
广东惠州公司 | 广西柳州公司 | 广西百色公司 |
广西梧州公司 | 贵州都匀公司 | 贵州遵义公司 |
江西兴国公司 | 广西靖西公司 | 广西河池公司 |
中山坦洲公司 | 广西田阳公司 | 浙江苍南公司 |
广东梅州公司 | 湖南麻阳公司 | 广东开平公司 |
顺德大良公司 | 佛山禅城公司 | 顺德容桂公司 |
广州番禺公司 | 广州从化公司 | 珠海香洲公司 |
江门新会公司 | 广东肇庆公司 | 广西贵港公司 |
四川泸州公司 | 四川绵阳公司 | 湖南湘潭公司 |
顺德北滘公司 | 广州南沙公司 | 湖南郴州公司 |
四川自贡公司 | 江西抚州公司 | 贵州铜仁公司 |
宁波镇海公司 | 呼和浩特公司 | 江门鹤山公司 |
上饶信州公司 | 新疆乌鲁木齐 | 广东梅州公司 |
江苏扬州公司 | 浙江柯桥公司 | 浙江嵊州公司 |
浙江新昌公司 | 浙江海宁公司 | 广西南宁公司 |
| 浙江桐乡公司 | 广东汕头公司 | 广西扶绥公司 |
| 广西平果公司 | 贵州兴义公司 | 四川南部公司 |
| 江西于都公司 | 山东烟台公司 | 江西泰和公司 |
| 云南丘北公司 | 云南昭通公司 | 广东云浮公司 |
| 福建长乐公司 | 广东茂名公司 | 重庆奉节公司 |
| 广西东兴公司 | 广西龙州公司 | 江苏金坛公司 |
| 重庆江津公司 | 福建福鼎公司 | 广西昭平公司 |
| 海南三亚公司 | 广西北流公司 | 福建邵武公司 |
| 江苏睢宁公司 | 江苏泗阳公司 | 广西富川公司 |
| 重庆巫山公司 | 云南开远公司 | 云南丽江公司 |
| 福建安溪公司 | 广西鹿寨公司 | 广东澄海公司 |
| 广西桂平公司 | 云南临沧公司 | 广东东莞公司 |
| 福建德化公司 | 广西宁明公司 | 江苏丹阳公司 |
| 重庆荣昌公司 | 四川宜宾公司 | 福建漳州公司 |
| 四川德阳公司 | 贵州习水公司 | 江苏泰兴公司 |
| 广东潮州公司 | 安徽天长公司 | 江西修水公司 |
| 广东罗定公司 | 期待您的加入 | ??? |
接待并谢谢您关注富易堂fyt装饰!

天下直营门店
自有施工团队
业主碑力推
品质质料展厅
都会服务